Whitfield County Tax Parcel Information

Owner and Parcel Information

Parcel Number 12-087-09-069
Realkey 11019
Property Record Card Click Here
GIS Map Map
Owner Name ALLEN TERRY J & SHERRY S
Owner Address 349 HAIGMILL RD
Owner Address 2
Owner Address 3
Owner City DALTON
Owner State GA
Owner Zip 30721
Latitude 34.82767686
Longitude -84.95628541
Property Information
Class Residential
Strata Lot
Tax District County
Neighborhood BFM
Legal Description L76 BEVERLY HILLS
Total Acres 0.81
Zoning See GIS Map
GMD\Map Number 079
Subdivision
Subdivision Phase
Subdivision Section 0001
Subdivision Block
Subdivision Lot
Comments:
Appeals Information
Appeal Year 2022
Appeal Status Resolved
Parcel Address
Parcel House Number 349
Parcel Street Extension
Parcel Street Direction NW
Parcel Street Name HAIGMILL
Parcel Street Units
Parcel Street Type RD
Current Fair Market Value Information
Previous 259851
Current 271506
Land 39000
Residential Improvement 232506
Commercial Improvement
Accessory Improvement
Conservation Use Value
Historical Fair Market Value Information
2023 200270
2022 168051
2021 168051
Exemption Information
Homestead S1
Preferential Year
Conservation Use Year
Historical Year
Historical Val 0
EZ year
EZ Val 0
 GIS Quickmap
Launch Interactive GIS Map
 For the current GIS map of this parcel, click on the Quickmap to launch the interactive map viewer
 Tax Commissioner Information
  Before making payment verify the amount due with the Tax Commissioner’s office at 706-275-7510
Tax Bill Recipient ALLEN TERRY J & SHERRY S
Year 2024
Parcel Number 12-087-09-069
Bill 200973
Exemption Type S1
Account No. 31742
Millage Rate 0
Fair Market Value 259851
Assessed Value 103940
Prior Years Tax Data Tax
Legal Description L76 BEVERLY HILLS
Sale Date
Taxes Due 2145.3
Taxes Due Date 1/20/2026
Taxes Paid 2145.3
Taxes Paid Date 1/3/2025 9:19:40 AM
Current Due 0
Back Taxes 0
Total Due 0
   
 Commercial Structure Information
 This parcel does not have any commercial structures to display
 Residential Structure Information
General
Value 232506
Class Residential
Strata Improvement
Occupancy Single Family Residence
Year Built 1999
Observed Condition Average
Heated Area 1408
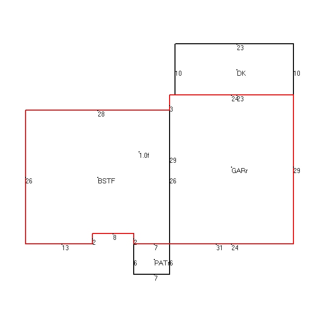
Structure Sketch Click Here
Comments: old sketch incorrect. resketched for 08
Plumbing
Full Baths 2
Half Baths 0
Standard Complements 1
Extra Features 3
Construction Information
Foundation Masonry
Exterior Walls Vinyl/Brick
Roofing Asphalt Shingle
Roof Shape Gable/Hip
Floor Construction Cont. Wall
Floor Finish Carpet/Tile
Interior Wall Sheetrock/Drywall
Interior Ceiling Sheetrock
Heat Central Htg and Air
Story Height
Basement/Attic Information
Basement Description None
Basement Finish Unfinished
Attic Description No Attic
 Accessory Information
 This parcel does not have any accessories to display
 Sales Information
Grantee ALLEN TERRY J & SHERRY S
Grantor
Sale Price 123500
Sale Date 8/1/1999
Deed Book/Page 3171 226
Deed Link Click Here
Class Residential
Strata Lot
Reason FAIR MARKET IMPROVED SALE
State Y
PT-61 -000000
Comments