Whitfield County Tax Parcel Information

Owner and Parcel Information

Parcel Number 12-098-21-000
Realkey 11314
Property Record Card Click Here
GIS Map Map
Owner Name CAMPOS MARBIN MIGUEL & NOEMI
Owner Address 1486 RENFROE RD NE
Owner Address 2
Owner Address 3
Owner City DALTON
Owner State GA
Owner Zip 30721
Latitude 34.81436109
Longitude -84.90677414
Property Information
Class Residential
Strata Small Tract
Tax District County
Neighborhood
Legal Description TRACT 6 MARVIN GILES ETAL
Total Acres 5.03
Zoning See GIS Map
GMD\Map Number 129
Subdivision
Subdivision Phase
Subdivision Section 0001
Subdivision Block
Subdivision Lot
Comments:
Appeals Information
This parcel does not have any appeals
Parcel Address
Parcel House Number 1486
Parcel Street Extension
Parcel Street Direction
Parcel Street Name RENFROE
Parcel Street Units
Parcel Street Type RD
Current Fair Market Value Information
Previous 464971
Current 502729
Land 112919
Residential Improvement 375123
Commercial Improvement
Accessory Improvement 14687
Conservation Use Value
Historical Fair Market Value Information
2023 368519
2022 268173
2021 268173
Exemption Information
Homestead S1
Preferential Year
Conservation Use Year
Historical Year
Historical Val 0
EZ year
EZ Val 0
 GIS Quickmap
Launch Interactive GIS Map
 For the current GIS map of this parcel, click on the Quickmap to launch the interactive map viewer
 Tax Commissioner Information
  Before making payment verify the amount due with the Tax Commissioner’s office at 706-275-7510
Tax Bill Recipient CAMPOS MARBIN MIGUEL & NOEMI
Year 2024
Parcel Number 12-098-21-000
Bill 205946
Exemption Type S1
Account No. 7099930
Millage Rate 0
Fair Market Value 464971
Assessed Value 185989
Prior Years Tax Data Tax
Legal Description TRACT 6 MARVIN GILES ETAL
Sale Date
Taxes Due 3978.37
Taxes Due Date 1/20/2026
Taxes Paid 3978.37
Taxes Paid Date 1/3/2025 9:19:42 AM
Current Due 0
Back Taxes 0
Total Due 0
   
 Commercial Structure Information
 This parcel does not have any commercial structures to display
 Residential Structure Information
General
Value 375123
Class Residential
Strata Improvement
Occupancy Single Family Residence
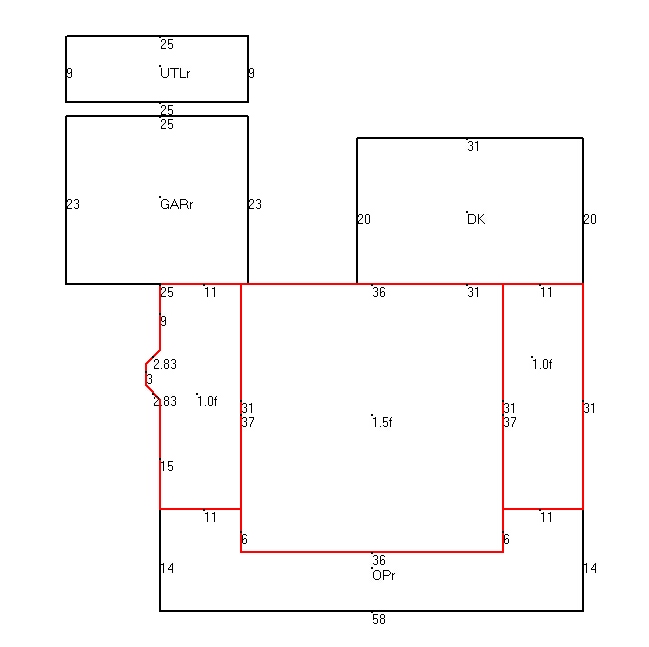
Year Built 1995
Observed Condition Average
Heated Area 2930
Structure Sketch Click Here
Comments:
Plumbing
Full Baths 3
Half Baths 0
Standard Complements 1
Extra Features 6
Construction Information
Foundation Masonry
Exterior Walls Br Veneer
Roofing Wood Shingle
Roof Shape Gable/Hip
Floor Construction Cont. Wall
Floor Finish Carpet/Wood
Interior Wall Sheetrock/Drywall
Interior Ceiling Sheetrock
Heat Central Htg and Air
Story Height 1.5 STORY
Basement/Attic Information
Basement Description
Basement Finish
Attic Description
 Accessory Information
Description POOL - STANDARD
Value 14687
Year Built 2007
Calculated Area 989
Length 23
Width 43
Class Residential
Strata Improvement
 Sales Information
Grantee CAMPOS MARBIN MIGUEL & NOEMI
Grantor GENTRY M MARRENE & DYLAN
Sale Price 495000
Sale Date 4/15/2022
Deed Book/Page 6929 290
Deed Link Click Here
Class Residential
Strata Improvement
Reason FAIR MARKET IMPROVED SALE
State N
PT-61 PT-61 155-2022-001199
Comments LIMITED WARRANTY DEED WITH ROS Additional Buyers:
Grantee GENTRY M MARRENE & DYLAN
Grantor
Sale Price 22700
Sale Date 4/1/1998
Deed Book/Page 2966 272
Deed Link Click Here
Class Residential
Strata Improvement
Reason Value Change
State N
PT-61
Comments