Whitfield County Tax Parcel Information

Owner and Parcel Information

Parcel Number 12-152-01-028
Realkey 14353
Property Record Card Click Here
GIS Map Map
Owner Name LOVELESS JOHNNY WAYNE
Owner Address 273 WATSON DR
Owner Address 2
Owner Address 3
Owner City ROCKY FACE
Owner State GA
Owner Zip 30740
Latitude 34.80282439
Longitude -85.04396185
Property Information
Class Residential
Strata Lot
Tax District County
Neighborhood
Legal Description L45 RIDGE CREST
Total Acres 0.46
Zoning See GIS Map
GMD\Map Number 031
Subdivision
Subdivision Phase
Subdivision Section 0003
Subdivision Block
Subdivision Lot
Comments:
Appeals Information
This parcel does not have any appeals
Parcel Address
Parcel House Number 273
Parcel Street Extension
Parcel Street Direction
Parcel Street Name WATSON
Parcel Street Units
Parcel Street Type DR
Current Fair Market Value Information
Previous 134534
Current 141125
Land 15750
Residential Improvement 125375
Commercial Improvement
Accessory Improvement
Conservation Use Value
Historical Fair Market Value Information
2023 95131
2022 68050
2021 72408
Exemption Information
Homestead S1
Preferential Year
Conservation Use Year
Historical Year
Historical Val 0
EZ year
EZ Val 0
 GIS Quickmap
Launch Interactive GIS Map
 For the current GIS map of this parcel, click on the Quickmap to launch the interactive map viewer
 Tax Commissioner Information
  Before making payment verify the amount due with the Tax Commissioner’s office at 706-275-7510
Tax Bill Recipient LOVELESS JOHNNY WAYNE
Year 2024
Parcel Number 12-152-01-028
Bill 222821
Exemption Type S1
Account No. 25096
Millage Rate 0
Fair Market Value 134534
Assessed Value 53814
Prior Years Tax Data Tax
Legal Description L45 RIDGE CREST
Sale Date
Taxes Due 1025.44
Taxes Due Date 1/20/2026
Taxes Paid 1025.44
Taxes Paid Date 10/10/2025 1:07:56 PM
Current Due 0
Back Taxes 0
Total Due 0
   
 Commercial Structure Information
 This parcel does not have any commercial structures to display
 Residential Structure Information
General
Value 125375
Class Residential
Strata Improvement
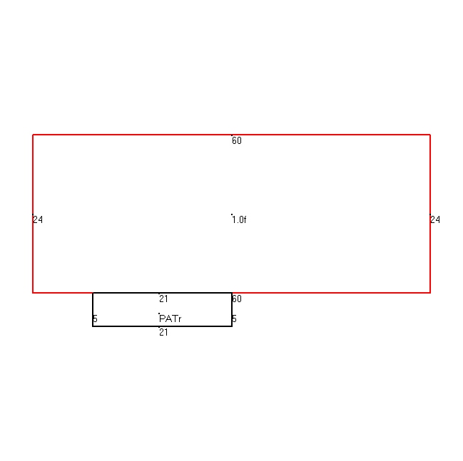
Occupancy Single Family Residence
Year Built 1963
Observed Condition Average
Heated Area 1440
Structure Sketch Click Here
Comments:
Plumbing
Full Baths 1
Half Baths 0
Standard Complements 1
Extra Features 0
Construction Information
Foundation Masonry
Exterior Walls Wood
Roofing Asphalt Shingle
Roof Shape Gable/Hip
Floor Construction Cont. Wall
Floor Finish Carpet/Wood
Interior Wall Sheetrock/panel
Interior Ceiling Sheetrock
Heat Central Htg and Air
Story Height
Basement/Attic Information
Basement Description None
Basement Finish
Attic Description No Attic
 Accessory Information
 This parcel does not have any accessories to display
 Sales Information
Grantee LOVELESS JOHNNY WAYNE
Grantor
Sale Price 48000
Sale Date 7/1/1992
Deed Book/Page 2319 126
Deed Link Click Here
Class Residential
Strata Lot
Reason FAIR MARKET IMPROVED SALE
State N
PT-61
Comments