Whitfield County Tax Parcel Information

Owner and Parcel Information

Parcel Number 12-253-01-065
Realkey 23627
Property Record Card Click Here
GIS Map Map
Owner Name RAMSEY WALTER & FAYE
Owner Address 129 BOWIE LN
Owner Address 2
Owner Address 3
Owner City DALTON
Owner State GA
Owner Zip 30721
Latitude 34.75411165
Longitude -84.93096584
Property Information
Class Residential
Strata Lot
Tax District County
Neighborhood DE3
Legal Description L251T260 J F PATTERSON
Total Acres 0.58
Zoning See GIS Map
GMD\Map Number 108
Subdivision J F PATTERSON
Subdivision Phase
Subdivision Section 0004
Subdivision Block
Subdivision Lot
Comments:
Appeals Information
Appeal Year 2022
Appeal Status Resolved
Parcel Address
Parcel House Number 129
Parcel Street Extension
Parcel Street Direction
Parcel Street Name BOWIE
Parcel Street Units
Parcel Street Type LN
Current Fair Market Value Information
Previous 100201
Current 111103
Land 20000
Residential Improvement 90103
Commercial Improvement
Accessory Improvement 1000
Conservation Use Value
Historical Fair Market Value Information
2023 63169
2022 51091
2021 51091
Exemption Information
Homestead S4-7
Preferential Year
Conservation Use Year
Historical Year
Historical Val 0
EZ year
EZ Val 0
 GIS Quickmap
Launch Interactive GIS Map
 For the current GIS map of this parcel, click on the Quickmap to launch the interactive map viewer
 Tax Commissioner Information
  Before making payment verify the amount due with the Tax Commissioner’s office at 706-275-7510
Tax Bill Recipient RAMSEY WALTER & FAYE
Year 2024
Parcel Number 12-253-01-065
Bill 230904
Exemption Type S4-7
Account No. 19487
Millage Rate 0
Fair Market Value 100201
Assessed Value 40080
Prior Years Tax Data Tax
Legal Description L251T260 J F PATTERSON
Sale Date
Taxes Due 0
Taxes Due Date 1/20/2026
Taxes Paid 0
Taxes Paid Date
Current Due 0
Back Taxes 0
Total Due 0
   
 Commercial Structure Information
 This parcel does not have any commercial structures to display
 Residential Structure Information
General
Value 90103
Class Residential
Strata Improvement
Occupancy Single Family Residence
Year Built 1959
Observed Condition Average
Heated Area 992
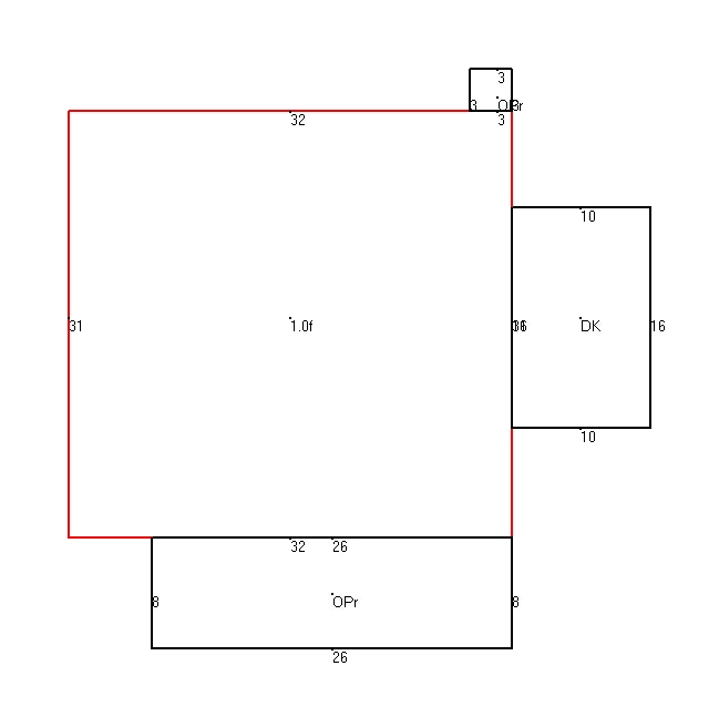
Structure Sketch Click Here
Comments: FLOOR IS FALLING IN PLACES IN THE HOUSE.
Plumbing
Full Baths 1
Half Baths 0
Standard Complements 1
Extra Features 0
Construction Information
Foundation Masonry
Exterior Walls Wood
Roofing Metal
Roof Shape Gable/Hip
Floor Construction Cont. Wall
Floor Finish Carpet/Wood
Interior Wall Sheetrock/Drywall
Interior Ceiling Sheetrock
Heat Floor/Wall Furnace
Story Height 1 STORY
Basement/Attic Information
Basement Description None
Basement Finish
Attic Description No Attic
 Accessory Information
Description DETACHED GARAGE
Value 1000
Year Built 2002
Calculated Area 624
Length 24
Width 26
Class Residential
Strata Production/Storage/Auxiliary
 Sales Information
  This parcel does not have any sales to display