Whitfield County Tax Parcel Information

Owner and Parcel Information

Parcel Number 09-071-06-000
Realkey 246
Property Record Card Click Here
Property Record Card Click Here
GIS Map Map
Owner Name GRIGGS TIMOTHY MARK & DEBORAH SHARON
Owner Address 1535 DAWNVILLE BEAVERDALE RD
Owner Address 2
Owner Address 3
Owner City DALTON
Owner State GA
Owner Zip 30721
Latitude 34.82539002
Longitude -84.87908185
Property Information
Class Residential
Strata Small Tract
Tax District County
Neighborhood
Legal Description 8.44A BEAVERDALE RD
Total Acres 8.44
Zoning See GIS Map
GMD\Map Number 128
Subdivision
Subdivision Phase
Subdivision Section 0005
Subdivision Block
Subdivision Lot
Comments:
Appeals Information
This parcel does not have any appeals
Parcel Address
Parcel House Number 1535
Parcel Street Extension
Parcel Street Direction NE
Parcel Street Name DAWNVILLE BEAVERDALE
Parcel Street Units
Parcel Street Type RD
Current Fair Market Value Information
Previous 350691
Current 435447
Land 213961
Residential Improvement 208661
Commercial Improvement
Accessory Improvement 12825
Conservation Use Value
Historical Fair Market Value Information
2023 229305
2022 170377
2021 170377
Exemption Information
Homestead S0
Preferential Year
Conservation Use Year
Historical Year
Historical Val 0
EZ year
EZ Val 0
 GIS Quickmap
Launch Interactive GIS Map
 For the current GIS map of this parcel, click on the Quickmap to launch the interactive map viewer
 Tax Commissioner Information
  Before making payment verify the amount due with the Tax Commissioner’s office at 706-275-7510
Tax Bill Recipient FLESNER MARLENA M
Year 2024
Parcel Number 09-071-06-000
Bill 212788
Exemption Type
Account No. 7080858
Millage Rate 0
Fair Market Value 350691
Assessed Value 140276
Prior Years Tax Data Tax
Legal Description 8.44A BEAVERDALE RD
Sale Date
Taxes Due 3133.91
Taxes Due Date 1/20/2026
Taxes Paid 0
Taxes Paid Date
Current Due 3133.91
Back Taxes 0
Total Due 3133.91
   
 Commercial Structure Information
 This parcel does not have any commercial structures to display
 Residential Structure Information
General
Value 208661
Class Residential
Strata Improvement
Occupancy Single Family Residence
Year Built 1961
Observed Condition Average
Heated Area 1692
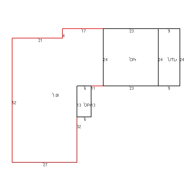
Structure Sketch Click Here
Comments:
Plumbing
Full Baths 1
Half Baths 1
Standard Complements 1
Extra Features 2
Construction Information
Foundation Masonry
Exterior Walls Br Veneer
Roofing Asphalt Shingle
Roof Shape Gable/Hip
Floor Construction Cont. Wall
Floor Finish Carpet/Tile
Interior Wall Sheetrock/Drywall
Interior Ceiling Sheetrock
Heat Central Htg and Air
Story Height
Basement/Attic Information
Basement Description None
Basement Finish
Attic Description No Attic
 Accessory Information
Description DETACHED GARAGE
Value 12825
Year Built 2002
Calculated Area 1200
Length 30
Width 40
Class Residential
Strata Production/Storage/Auxiliary
 Sales Information
Grantee GRIGGS TIMOTHY MARK & DEBORAH SHARON
Grantor FLESNER MARLENA M
Sale Price 275000
Sale Date 9/30/2024
Deed Book/Page 7075 220
Deed Link Click Here
Class Residential
Strata Improvement
Reason CHANGES TO PROPETY AFTER SALE
State N
PT-61 PT-61 155-2024-002705
Comments
Grantee FLESNER MARLENA M
Grantor POTEET KEN M
Sale Price 155200
Sale Date 1/27/2017
Deed Book/Page 6462 92
Deed Link Click Here
Class Residential
Strata Improvement
Reason FAIR MARKET IMPROVED SALE
State N
PT-61 PT-61 155-2017-000000
Comments WARRANTY DEED
Grantee POTEET KEN M
Grantor POTEET RALPH
Sale Price 0
Sale Date 2/3/2007
Deed Book/Page 4982 192
Deed Link Click Here
Class Residential
Strata Improvement
Reason
State N
PT-61 PT-61 155-2007-001097
Comments WARRANTY DEED